Не упусти свой шанс! Последние акции от застройщиков  ▼

Продается 3-комнатная квартира, Каширский пр-д, 25к4

30 700 000 Р

Каширский пр-д25к4

Дата публикации: 25 апреля 2025

Дата обновления: 1 апреля 2026

Телефон: 
Показать телефон

+7 (499) 372-92-13

Агентство:  МИЭЛЬ

От застройщика: 0 квартир в продаже

Этаж: 23 / 23

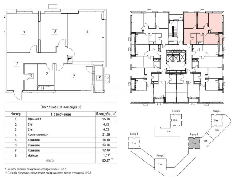
Общая: 90,7 м2

Жилая: 42,5 м2

Кухня: 22 м2

Комнаты: не указано

Балкон/лоджия: не указано

Лифт: есть лифт

Окна: окна на улицу

Санузел: совмещенный

Мусоропровод: не указано

Состояние квартиры: требуется ремонт

Тип дома: монолитно-кирпичный

Год постройки: 2020

Территория: огороженная

Парковка: не указано

Статус сделки: продажа

Сделка: альтернатива

Собственность: не указано

Основание права собственности: не указано

Описание

Код объекта: 1570397.Альтернатива подобрана.Отличное предложение в Южном административном округе!Дом Бизнес-класса Описание квартиры:Продается евро 4-комнатная квартира общей площадью 90.8 кв метра без отделки с панорамными видами в жилом монолитно-кирпичном комплексе 2020 года постройки по адресу: Москва, Каширский проезд, 25к4-Функциональную планировку, где у каждого члена семьи будет свое личное пространство: три изолированные спальни площадью:16,5+13,5+12,9 кв. м, просторная кухня-гостиная площадью 23 кв. м, два санузла 4,6 и 4,8 кв. м Высота потолков 3м. Сделать ремонт и выбрать мебель по собственному вкусу. Дом и двор:-Комфорт и безопасность проживания: высокое качество строительства дома обеспечивает высокий уровень шумо- и теплоизоляции,-на собственной огороженной закрытой территории расположены спортивные и детские площадки,современные досуговые зоны.-Есть парковочные места для жителей и гостей дома.-Жители дома обеспечены круглосуточным видеонаблюдением двора и подъезда.-В подъезде дома большой холл,-Отдельное помещение оборудовано помывочной зоной Колясочная и велосипедная зона ,-сан. узел в холле,- отдельное помещение для интернет заказов Транспортная доступность:-Быстрый выезд на Варшавское и Каширское шоссе-3 минуты пешком до метро станции Варшавская-ж/д станция Варшавская-остановки общ. транспорта-прямая ж/д линия в аэропорт Домодедово. Инфраструктура рядом:Удобные транспортные развязки: Ашан, Вегас, Твой Дом, Метро, ОБИ, Леруа Мерлен и пр.В районе Москворечье-Сабурово находятся известные московские парки Коломенское и Царицыно.Рядом Борисовские пруды с пляжными зонами.Детские сады и и новая школа в шаговой доступности от дома.Все необходимые для жизни объекты социальной инфраструктуры Школа им. Митина, Корпоративный Университет Транспортного комплекса, Теннисный клуб, сетевые магазины, кафе и рестораны. Условия продажи:-Собственность, более 5 лет, использован мат. капитал!-Приобреталась у застройщика, альтернатива подобрана.-Делайте выбор в пользу комфорта и безопасного проживания в обжитом московском районе с развитой инфраструктурой! Преимущества МИЭЛЬ:-Юридические гарантии для покупателя;-Выгодные программы ипотечного центра Миэль.-Партнерские программы Лучшее ценовое предложение за квартиру в доме Бизнес-класса!

Квартира на карте

ПанорамыКарта
Спецпредложения
Добавить объявление